hola@scanpoints.com · 56 33471730
hola@bloque3d.com
x
MENU
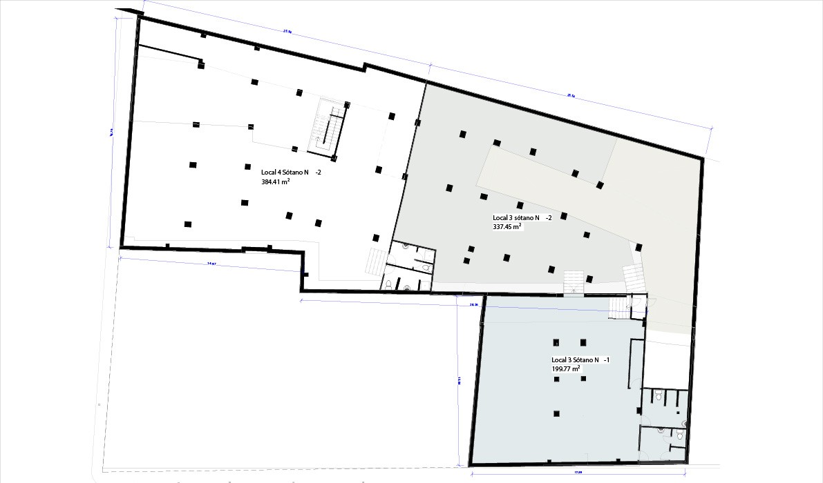
Carmelitas
Tipo
Levantamiento arquitectónico
Ubicación
CDMX
Superficie
1166 m²
Entregables
3D BIM
2D CAD
Nube de puntos
Visita Virtual
Entregables
3D BIM
2D CAD
Nube de Puntos
Visita Virtual
Exterior
Sí. Necesito levantamiento de fachada.
No. Solamente necesito levantamiento de espacio interior.
Tamaño del espacio
0-100 m²
200-500 m²
500-1000 m²
Subir archivos
Privacidad de datos del cliente. Los datos dispuestos en este formulario se utilizarán en la base de datos de scan-ponits.com con el fin de enviar contenido de interés.
¡Recibido!, nos pondremos en contacto contigo.
Oops! Something went wrong while submitting the form.
hola@scan-points.com
Agendar Videollamada